
Městský úřad Jirkov
nám. Dr. E. Beneše 1
431 11 Jirkov
Telefon: 474 616 411
E-mail: podatelna@jirkov.cz
Datová schránka: 9zcbsra
IČO: 00261904
Otevřeno pro veřejnost:
PO a ST 8:00-17:00 h.
ÚT, ČT, PÁ 8:00-13:00 h.
Škole se podařilo získat dotaci 17 milionů korun, která bude investována do stavebních úprav a zlepšení bezpečnosti i komfortu pro žáky. Stejně vysoký objem prostředků škola očekává také v následujícím roce. Na akci přispěje město Jirkov, bez něhož by se takto velké investice do zázemí školy nepodařily uskutečnit.
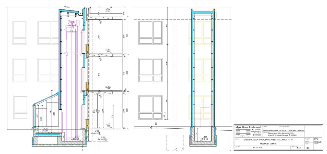
Finance budou využity především na vybudování venkovního výtahu (viz vizualizace) a dále na kompletní rekonstrukci podlah v prostorách šaten, hlavní chodby a spojovací chodby do jídelny. Stávající podlahy se už na několika místech propadají, a proto je jejich oprava nejen žádoucí, ale i nutná z hlediska bezpečnosti.
Realizací těchto prací se škola stane plně bezbariérovou, což dlouhodobě patřilo mezi její priority.
Velkou proměnou projdou i samotné šatny. Zmizí staré klece a nahradí je moderní šatní skříňky, které zajistí větší pohodlí, pořádek i bezpečné uložení osobních věcí žáků. Úpravy společných prostor tak přinesou nejen nové vybavení, ale celkově příjemnější prostředí pro všechny děti.
Vedení školy plánuje pokračovat v modernizačním trendu i v dalším období. Díky očekávané dotaci bude moci investovat do obnovy učeben, lepšího vybavení a nákupu nových pomůcek.